华夏陶瓷网讯 建筑幕墙在我国获得到长足的发展,一些系统达到或超越国外的水平,涌现出一大批精品工程和高科技含量的工程,但是同时也有很多工程出现问题,甚至是不可谅解的安全性问题。
经过近些年的工程检测、实验室检验以及技术会议的讨论,发现幕墙的这些问题可以通过设计手段加以避免。

石材幕墙设计要点
龙骨全焊接
在JGJ133《金属与石材幕墙工程技术规范》中,横梁和立柱应采用螺栓连接,是强制性条文,不允许焊接,但工程中经常采用全部焊接的构造。在技术层面:焊接是可行的;在法律层面:焊接是必须禁止的。从技术角度出发,横梁一端焊接,另一端螺栓连接是比较好的方案。

面板与龙骨无横向定位
与单元幕墙挂点一样,石材面板的挂接也应遵循一定的规则,四点之中应该有一点与龙骨相对规定,其余三点能够吸收温度变形,承受垂直幕墙表面的荷载。

短横梁
短横梁可以节省幕墙的材料用量,尤其对面板比较小的工程,效果比较明显,特别适合与轻质面板,如瓷板、陶板和千思板等,在石材幕墙的应用中,不值得推荐,会存在间隙调整困难,平面度差等问题,尽可能不用。

伸缩缝不能传递弯矩
采用角钢或槽钢制作的立柱,在伸缩缝部位应进行专门设计,否则不能传递弯矩。

跨间短槽(斜钩)支承
无论是相向还是相反的跨间短槽连接均不可靠,应避免使用。
SE挂件传力途径应明确
SE挂件是比较成熟的挂接系统,但应设计好传力途径,否则仍然会出问题。一般应采用下部两点,即S形挂件作为承载点,F形挂件不承受重力荷载,仅承受风载。设计时应留有足够的间隙,即使石材面板发生沉降,F形挂件仍然不承受重力荷载。

T型挂件和蝴蝶扣挂件
这两种挂件在市场上的占有率比较高,价格便宜,平整度好。但在安装完成后形成大片连续不可错动墙面,一方面维修更换困难,另一方面抗风振、抗地震性能较差,在汶川地震中也有失败的报道。在GB/T21086-2007《建筑幕墙》中,已经明确“不宜采用”。在振动台抗震试验中,也发现该类挂件的存在缺陷。北京已将该类挂件列为强制淘汰产品。

h形挂件的保护套设计
h形挂件是比较简单的一种挂件,在瓷板幕墙中有较为广泛的应用,一些设计为了防止滑动时产生噪音,并避免钢铝直接接触产生双金属接触腐蚀,在其搭接部位设置U形衬垫,由于设计不当,导致挂件承载部分壁厚大大削弱,存在安全隐患。
板块粘接
石材面板不能采用粘接,应该采用机械连接,确保其耐久性和可靠性。北京某工程粘接石材出现断裂现象,还有工程出现开胶现象。

使用朝天缝、错缝
由于污染和曝晒等原因的影响,朝天缝更容易失效,除非建筑师强烈要求,尽量避免使用朝天缝。错缝连接对石材面板的几何尺寸要求较高,同时挂接难度高,一般尽量不用。

开放石材悬空保温系统无抗风压能力
由于石材面板间胶缝可能会对石材造成污染(硅油污染或吸灰污染),使一些建筑师宁愿设计开缝式石材系统。如果按照JGJ133《金属与石材幕墙工程技术规范》的规定,保温材料与主体结构之间应留有50mm的空间,即保温材料悬空布置。由于外层石材面板为开缝式系统,风压会部分地作用在保温材料上,即要求保温层应具有抗风压性能。

大面石材幕墙层间封堵问题
2009年,TVCC大火给幕墙行业带来巨大的震动。根据公安部、住房和城乡建设部联合发布的《民用建筑外保温系统及外墙装饰防火暂行规定》(公通字[2009]46号)的文件精神:
(1)建筑高度大于等于24m时,保温材料的燃烧性能应为A级。
(2)建筑高度小于24m时,保温材料的燃烧性能应为A级或B1级。其中,当采用B1级保温材料时,每层应设置水平防火隔离带。
(3)保温材料应采用不燃材料作防护层。防护层应将保温材料完全覆盖。防护层厚度不应小于3mm。”,大面石材幕墙采用B1级保温材料时,层间应进行封堵。

8MPa以下石材无加强构造
在GB/T21086-2007《建筑幕墙》中规定:弯曲强度标准值小于8.0MPa的石材面板,应采取附加构造措施保证面板的可靠性。
面板厚度不满足标准要求
花岗岩面板厚度至少为25mm,其他石材GB21086有明确的规定。一些业外人士开发的幕墙板材系统,在15mm厚的石材后部附加一些保温材料,或一些可靠性不高的支承构造,面板仍然为主要受力构件。这种系统工程应用后,由于没有标准支持,无法进行验收,造成大量的浪费。实践中,石材厚度不满足要求的工程,有些出现安全问题。例如北京某工程采用20mm的红色洞石,还没有通过验收即破裂脱落;广州某工程30厚红砂岩风化严重,出现破裂。

石材幕墙在设计上注意的要点繁多,稍不谨慎就可能造成不可挽回的安全问题。
如何能在幕墙设计上减少后顾之忧呢?寻根溯源,可以从幕墙的选材,解决部分安全问题。
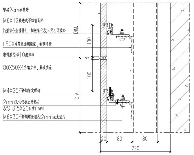
唯格2cm石英砖,还原石材、超越石材的性能,在幕墙应用上展现出众多优势。
石英砖幕墙优势
1、安全
石英砖的破坏强度(EN 14411)达9000N,断裂模数高达45MPa,具有不开裂、不炸裂、不剥落、不掉落的特性,并通过“建筑幕墙性能分级的最高级别”安全检测。运用在户外幕墙干挂,凸显石英砖的安全性能。



▲韩国济州岛酒店石英砖幕墙
2、可降低20-30%施工造价
(1)材料价格:石材资源限采,价格日益攀升
(2)运输成本:石英砖与石材密度、重量相近,性能更高,相同面积重量的运输成本只有石材的一半左右
(3)干挂成本:石英砖较轻,可降低干挂龙骨规格,楼体总负载减少也可降低成本
(4)施工成本:施工前不需做六面防护处理;悬空铺贴简易;施工效率提高,人工成本大幅下降

3、幕墙干挂简便
(1)h型挂件
h型挂件配套双向调节螺丝,安装时可以自由调节,使用简单,易于安装,但是咬合力较小,咬合深度稍嫌不足,h型挂件更适合和背栓搭配在瓷板以及20MM以下的石材,挂件成本相对便宜


(2)R型挂件(耳挂)
R型挂件又分平耳挂和凹耳挂,平耳挂适合与敲击式、齐平式背栓搭配使用,凹耳挂适合与旋进式和间距式背栓搭配使用。R型挂件安装简单,咬合力比h型挂件好,适用于唯格2cm瓷板,已广泛使用于各种厚度的石材,挂件成本适中。


(3)C型挂件(子母挂)
C型挂件由两片铝合金主体以及调节螺栓组成,一部分和背栓相连固定在面板上,另一部分固定在龙骨上,安装的时候两部分紧密咬合在一起。C型挂件比h型挂件和R型挂件可承载更大的作用力,适用于各种厚度面板的干挂,安全性能最好,挂件成本相对h型挂件和R型挂件要高一点。


2cm石英砖幕墙案例
福建厦门泰地海西中心


扬州景诚国际饭店


广州路劲天隽峰



相关文章



头条焦点
精彩导读